Minikran mieten in Köln –
Starke Leistung auf kleinstem Raum

Autokran in Benutzung

Der Jekko SPX532.2: Ihr Partner für Indoor-Einsätze und enge Hinterhöfe

Nicht jede Baustelle ist für große Autokrane zugänglich. Wenn Tordurchfahrten zu schmal sind, der Untergrund empfindlich ist oder Arbeiten im Gebäudeinneren (Indoor) erledigt werden müssen, schlägt die Stunde unseres Minikrans.

Bei Hart Autokranverleih mieten Sie mit dem Jekko SPX532.2 das aktuell modernste Gerät seiner Klasse – verfügbar im Großraum Köln und 200 km Umkreis.

Warum einen Minikran (Spinnenkran) mieten?

Unser Minikran kombiniert die Kraft eines großen Krans mit den Maßen eines Ameisenbären. Er passt durch Standardtüren und entfaltet seine Kraft erst dort, wo andere Maschinen kapitulieren.
E

Passt durch die Tür: Im Transportzustand ist der Kran extrem schmal. Er gelangt durch Gartentore, schmale Gassen oder in Lastenaufzüge.

E

Emissionsfrei & Leise: Dank modernster Lithium-Ionen-Technologie arbeitet der Kran ohne Abgase und fast geräuschlos. Perfekt für Einsätze in Kirchen, Einkaufszentren, Museen oder Krankenhäusern.

E

Volle Power: Sollte der Akku an langen Arbeitstagen leer werden, schließen Sie ihn einfach an eine normale 230V-Steckdose an und arbeiten ohne Unterbrechung weiter.

Autokran in Benutzung

Das Kraftpaket im Detail: Jekko SPX532.2

Trotz seiner kompakten Maße ist der SPX532.2 ein Riese, wenn es um Leistung geht. Er ist der leistungsstärkste Minikran in seinem Segment.

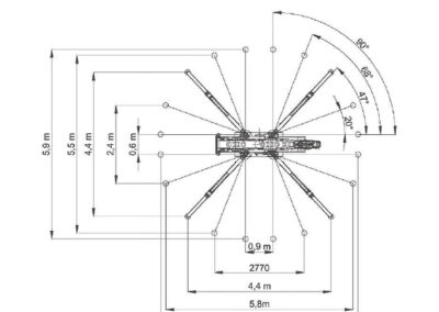
Maximale Flexibilität bei der Abstützung

Das Highlight ist das variable Abstützsystem. Die Stützen (Ausleger) lassen sich in Winkeln von 0° bis 90° positionieren.

Ihr Vorteil: Sie können den Kran auch zwischen Hindernissen, nah an Wänden oder auf unebenem Gelände sicher aufstellen. Die Software berechnet automatisch die maximal mögliche Traglast für die gewählte Position.

Autokran in Benutzung

Technische Daten

E

Max. Traglast: 3.200 kg

E

Max. Hakenhöhe: 17,30 m (mit Jib)

E

Max. Reichweite: 14,80 m

E

Abmessungen (L x B x H): ca. 3,25 m x 0,77 m x 1,96 m (geschlossen)

E

Antrieb: Lithium-Ionen-Akku & 230V Netzbetrieb (Hybrid)

E

Gewicht (Eigengewicht): ca. 2.350 kg

E

Besonderheit: Passt durch Standardtüren (unter 80cm Breite)

(Werte können je nach Rüstzustand variieren)

Full-Service mit Bedienpersonal

Bei uns mieten Sie Ihren Kran grundsätzlich im Full-Service. Das bedeutet: Sie bekommen nicht nur die Maschine, sondern auch einen erfahrenen Kranführer direkt dazu. So stellen wir maximale Sicherheit, Effizienz und einen reibungslosen Ablauf sicher.

E

Sicherheit: Unser Personal ist geschult und kennt jeden Kniff der Maschine.

E

Effizienz: Wir erledigen den Hub schnell und präzise.

E

Gute Laune inklusive: Unser Team packt mit an – wir heben nicht nur Lasten, sondern auch die Stimmung auf der Baustelle.

E

Rundum-sorglos: Sie müssen sich weder um Bedienung noch um Transport oder technische Details kümmern.

So können Sie sich auf das Wesentliche konzentrieren – wir übernehmen den Rest.

Typische Einsatzgebiete

E

Glasmontage: Setzen von großen Scheiben in Foyers oder Wintergärten (kombinierbar mit unseren Glassaugern).

E

Stahlbau: Montage von Trägern in bestehenden Hallen oder sanierten Altbauten.

E

Garten- & Landschaftsbau: Setzen von schweren Bäumen oder Steinen in Gärten ohne breite Zufahrt.

E

Restaurierung: Arbeiten in denkmalgeschützten Gebäuden (bodenschonend & abgasfrei).

Ihr Partner in der Kranvermietung

Sie haben Fragen zu unserem Minikran oder unseren Leistungen? Sie benötigen weiteres Zubehör oder einen Glasroboter für Ihr Bauprojekt rund um Köln? Oder wünschen Sie eine Beratung für die beste Lösung um Ihr Bauvorhaben zu starten?
Ob enges Treppenhaus oder verwinkelter Hinterhof – wir haben die Lösung.
Ob per Telefon, E-Mail oder über unser Kontaktformular: Wir freuen uns auf Ihre Anfrage!

FAQ – Häufige Fragen zu unserem Minikran

Hinterlässt der Kran Spuren auf meinem Parkett oder Fliesenboden?

Nein. Unser Jekko-Minikran ist mit speziellen weißen „Non-Marking“-Gummiketten ausgestattet. Diese sind extra für den Indoor-Einsatz konzipiert und hinterlassen keinen schwarzen Abrieb auf empfindlichen Böden wie Marmor, Parkett oder Hallenböden. Dennoch sollte der Boden vorab gekehrt werden, damit sich keine Steinchen in die Ketten drücken.

Kommt der Minikran eine Treppe hoch?

Nein, der Minikran kann keine Treppen steigen. Er benötigt Rampen oder einen Lastenaufzug. Oft heben wir den Minikran aber mit einem unserer großen Autokrane in den Innenhof oder auf eine Etage, wo er dann autark weiterarbeitet.

Passt der Minikran durch mein Gartentor oder in meine Garage?

Diese Frage bekommen wir sehr häufig – und in vielen Fällen lautet die Antwort: Ja. Unsere Minikrane sind kompakt gebaut und speziell für enge Zufahrten konzipiert.

Ob eine Durchfahrt möglich ist, hängt von der tatsächlichen Breite und Höhe Ihres Tores, Ihrer Garage oder der Einfahrt ab. Auch Kurven, Gefälle oder weicher Untergrund spielen eine Rolle.

Teilen Sie uns am besten die Maße der engsten Stelle mit oder senden Sie uns ein Foto der Situation. So können wir schnell einschätzen, ob der Kran problemlos passieren kann oder ob eine alternative Lösung sinnvoll ist.

Noch unsicher beim Einsatzort?

Sie haben weitere Fragen oder zweifeln, ob der Minikran wirklich durch Ihre Tür, das Gartentor oder den Flur passt? Sprechen Sie uns einfach an.